Ваша надежная строительная компания:
профессиональный подход к малоэтажному строительству
Герб города Ярославль
Строим каркасные дома от 45 дней и от 40.000 рублей за кв.м.

Меню

О нас Загородные дома Фундаменты Заборы Монолитные работы Контакты

экогород

Проект загородного дома ЭГ-Д-104

Герб города Ярославль
Проект загородного дома ЭГ-Д-104
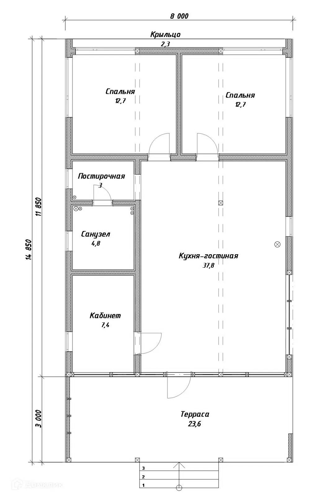
План Проект загородного дома ЭГ-Д-104
Доп. изображение Проект загородного дома ЭГ-Д-104Доп. изображение Проект загородного дома ЭГ-Д-104Доп. изображение Проект загородного дома ЭГ-Д-104Доп. изображение Проект загородного дома ЭГ-Д-104
0 Р.
Общая площадь помещений, м2 - 104
Этажность - 1
Количество комнат - 4
от 100 до 200 м2
1 этаж
4 комнаты
Рассчитать проект

Рассчитать онлайн

Тип проекта Ваше имя Телефон для связи