

0 Р.
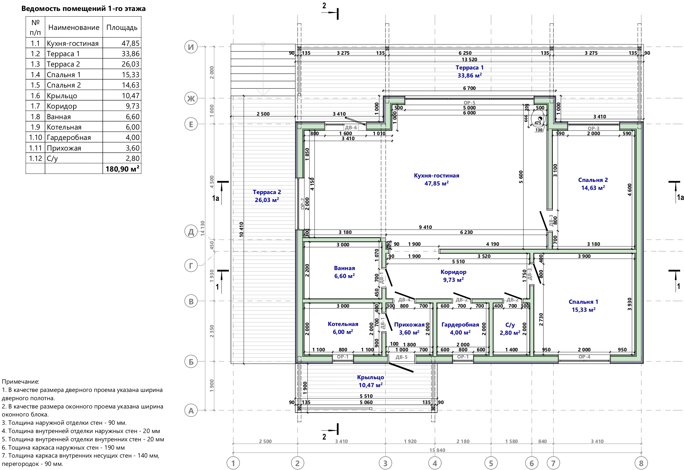
Общая площадь помещений, м2 - 180.9
Этажность - 1
Количество комнат - 3


Общая площадь помещений, м2 - 180.9
Этажность - 1
Количество комнат - 3